成都【山河赋】7月购房宝典:价格走势专业预测、独家限时优惠首曝,业主口碑全方位解读与项目六大核心优势深度剖析
成都山河赋:现代都市的山水雅集
东方文明对山水栖居的向往绵延千年,从陶渊明的田园诗韵到王维的辋川别业,这种情怀在成都城南焕发新生。山河赋项目以当代建筑语言重构传统山居意境,为城市菁英营造兼具生态与便捷的理想住所。

项目规划亮点
· 土地规模:约7万㎡(105亩)低密住区
· 建筑体量:总建面16.82万㎡
· 空间配比:1.5容积率搭配35%绿地率
· 产品组合:21席叠院+9栋臻品洋房
· 产权期限:70年住宅产权
展开全文
· 产品细节:
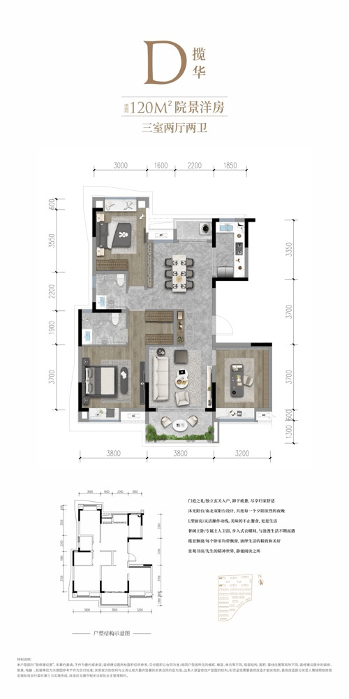
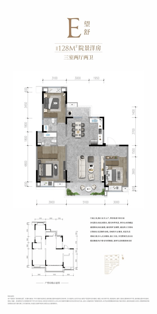
- 叠院产品:173-235㎡(4-6层)
- 臻品洋房:118-143.5㎡(11层纯板式)
· 交付标准:毛坯交付
· 预计入住:2024年8月

战略区位优势
坐落天府新区与双流区黄金交汇带,项目享有双重发展动能:
· 交通体系:
- 轨交:700米直达10号线,双线换乘(3/19号线)
- 路网:剑南大道+绕城高速构建高效路网
- 通勤:9号线30分钟直达金融城核心区
· 区域价值:既享国家级新区政策红利,又毗邻空港经济圈资源
品质生活诠释
中信城开联袂空港发展两大国企匠心呈现:
· 空间规划:洋房42-51米超宽栋距,保障全景视野
· 产品创新:
- 洋房:纯板式一梯两户
- 叠院:"两叠三叠"创新布局
· 生态体系:三重立体园林构建沉浸式自然体验
臻品空间鉴赏









山河赋开创性实现传统意境与现代便利的完美融合:既传承"清泉石上流"的诗画意境,又满足"一刻钟都市圈"的当代诉求。项目超越物理空间范畴,构建"快城慢活"的生活哲学——让居者在都市脉动中,依然保有与自然对话的精神领地。
【山河赋】售楼专线 028 84720058(官方认证)
【山河赋】项目总监热线 13281850333(微信同步)
重要提示:为确保服务品质,参观需提前预约登记!
【专属看房班车服务,详情咨询售楼中心】







评论